
Secure Income Today, Potential Tomorrow
Private inspections available upon request. We look forward to showing you through.
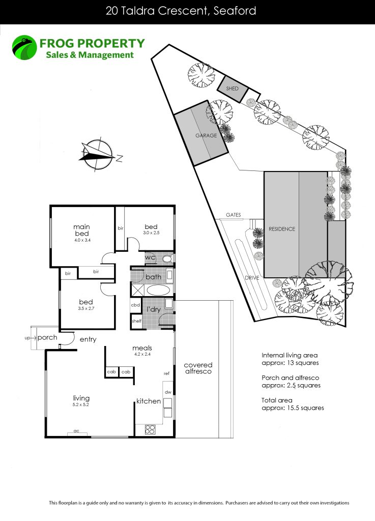
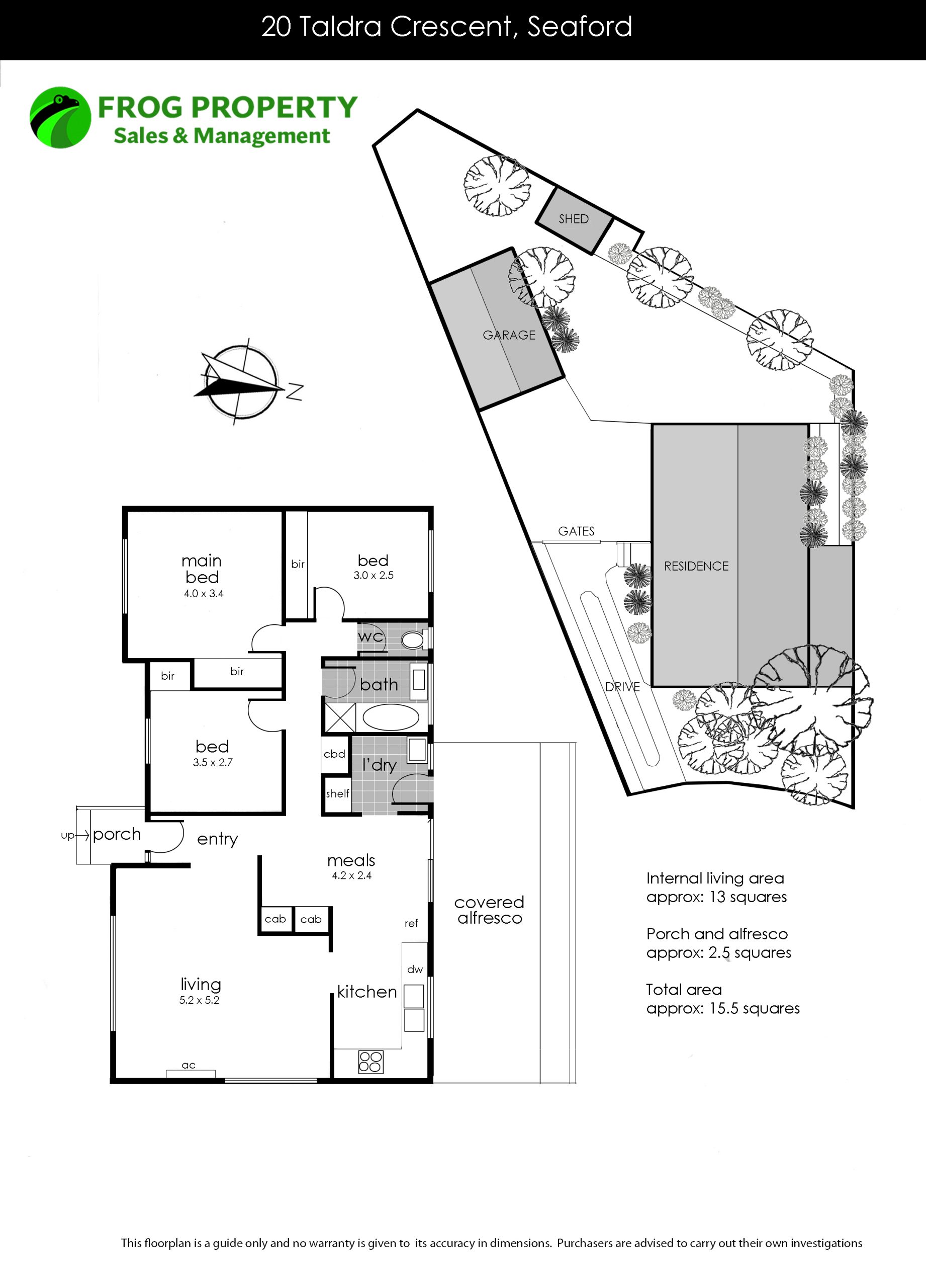
Set on a generous block of approximately 670 sqm, this original family home offers the perfect blend of comfort, convenience, and opportunity. Inside, you’ll find three bedrooms along with an L-shaped lounge that creates a warm and inviting space for everyday living. The kitchen is well-sized and functional, providing the perfect canvas to update and personalise to your own taste.
The centrally located bathroom includes both a separate bath and shower, ideal for family living. Floorboards run throughout the home, adding style and easy maintenance, while the surrounding gardens are designed to be low upkeep so you can spend more time enjoying your home.
Positioned in a quiet street, the property also features a double garage at the rear, offering secure parking and additional storage. With local shops nearby and an easy walk to parks, schools, and public transport, the location is as appealing.
Currently tenanted until December 2026, the renters would love to stay on long term. This home will ideally suit developers and those looking for future subdivision potential (STCA).