
Set Back on Large Block
Available on a periodic lease.
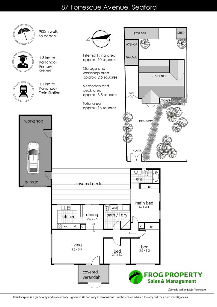
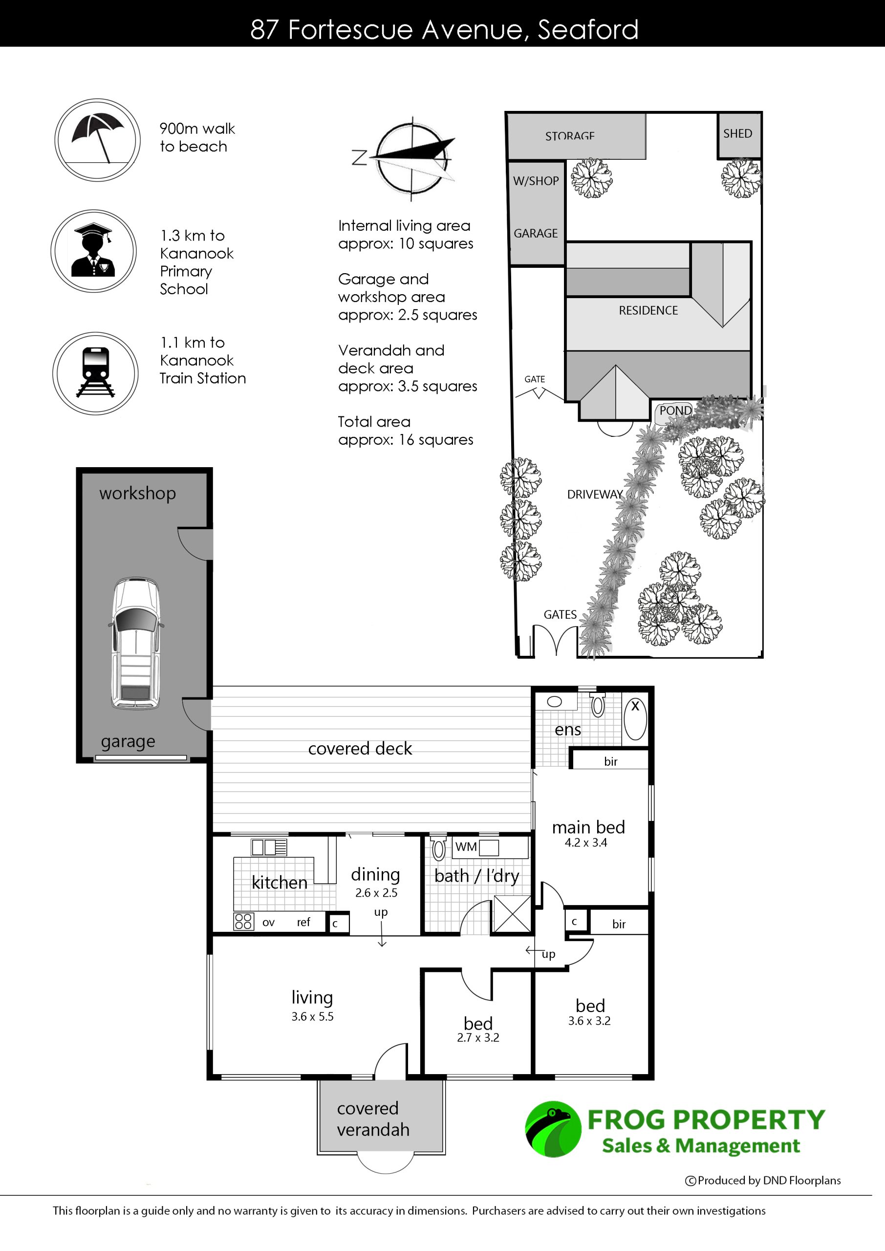
Sitting on a huge block of approx. 762sqm, the well-kept, light and bright three-bedroom home is simply fabulous. Set at the rear of the block, the home consists of three bedrooms with an ensuite to master and renovated second bathroom/combined laundry. The lounge is spacious with timber floorboards running into the bedrooms, and the kitchen opens on to a large undercover deck and alfresco entertaining area. There is a good-sized garage or workshop and various other outbuildings and garden beds, making the home great for families and pets.
87 Fortescue Avenue is located in one of the most highly sought-after parts of Seaford. The quiet, leafy pocket is only two blocks from the beach and one from the Kananook Creek Trail. It’s an easy walk to parks, schools, the Seaford Village shops, and the Seaford Train Station.